14m x 21m Ground Floor Hospital Layout with First Floor 3BHK House Plan | AutoCAD DWG File
Description
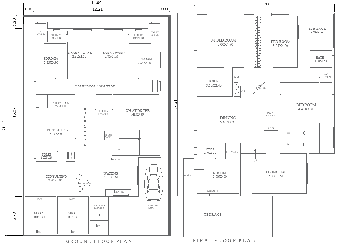
This 14m x 21m layout combines a ground-floor hospital design with a first-floor 3BHK house plan, making it ideal for multi-purpose healthcare and residential spaces. The hospital area includes essential facilities such as a medical shop, waiting area, consultation room, general ward, special private room (S.P room), operating theater (O.T), X-ray room, corridor, and lobby. The first floor features a spacious 3BHK setup, complete with bedrooms, bathrooms, a kitchen, a living hall, a dining area, a terrace, and additional storage. Provided as an AutoCAD DWG file, this layout is ideal for builders, architects, and designers looking for a practical, integrated approach to healthcare and residential planning.

Uploaded by:
Eiz
Luna

